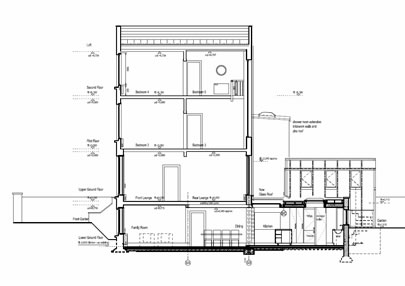
Project type:
Ground floor remodelling / extension and shower room extension
Size:
50 m2
Location:
North-East London
Completion:
December 2011
Summary description:
Extension and remodelling of a Victorian terraced house to complement existing 1980s extensions; lower ground floor glazed light well and internal remodelling to accommodate kitchen / dining room, living room, family bathroom and utility cupboard; first floor rear addition to house shower room
< 6 / 8 >

