Project type:
Ground floor side extension and loft extension
Size:
50 m2
Location:
North London
Completion date:
 March 2010
Summary description:
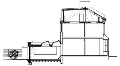
Loft extension with zinc dormer, including bedroom / sitting room and shower room; ground floor side and rear extension with zinc roof and rendered rear facade to accommodate kitchen / dining room. Both extensions to this Victorian terraced house in Islington have been designed to the limits of permitted development.
< 2 / 2 >

