Project type:
Competition
Size:
Location:
Northshore
Date:
December 2008
Summary description:
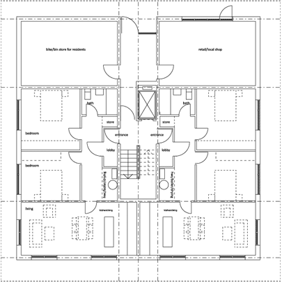
Sustainability is in the quality of the public realm, a place where people will want to stay. The landscape is the unifying feature linking towers, villas and terraced houses, planned around private and semi-private gardens. The dwelling layouts are flexible in terms of the users’ lifestyle and age.
< 6 / 7 >
ground floor tower

